000359【新築】なかもずクリニックモール/御堂筋線「中百舌鳥駅」徒歩19分
000359【新築】なかもずクリニックモール/御堂筋線「中百舌鳥駅」徒歩19分
・生活幹線道路沿いで視認性高!
・学校等多く医療ニーズ高めエリア
・調剤薬局併設・駐車場完備
※2025年10月竣工予定
- 物件番号
- 000359 (お問い合わせ時に必要です。)
- 物件情報
- 医療モール計画
- 最寄り駅
- 御堂筋線「中百舌鳥駅」徒歩19分
南海バス 徒歩1分
- 所在地
- 大阪府堺市北区百舌鳥陵南町2丁目627【地図表示】
- 形態
- 医療モール
- 募集科目
- 医科 ※内科眼科以外
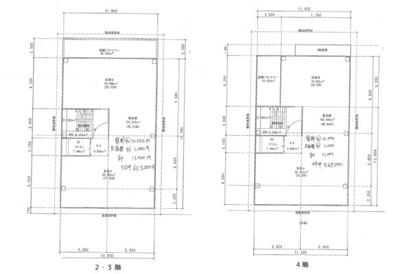
- 面積
- 2階、3階: A区画 27.05坪/B区画 28.15坪、4階:A区画 32.3坪/B区画 20.5坪
- 賃料
- 賃料:10,000円/坪 ※応相談、共益費:1,000円/坪 ※応相談
- 入居時期
- 2025年10月竣工予定・応相談
お電話でのお問合せ先:0120-18-3162シャープファイナンス プラットフォーム事業推進室
受付時間 : 月曜~金曜日 10:00~17:00 《ただし、祝日など弊社休業日を除く》


